Waiver Of Lien To Date Template

A document relinquishing a legal claim against property for services or materials provided up to a specific point in time is a critical tool in construction and related industries. This document provides a formal record of the release, protecting both the property owner and the service provider from future disputes. It typically specifies the property, the parties involved, the services or materials covered, and the date through which the claim is waived. This allows for partial payments and progress on projects without jeopardizing the rights of those who have contributed labor or resources.

Utilizing such a document offers several advantages. It facilitates smooth financial transactions, reduces the risk of future legal entanglements, and builds trust between stakeholders. Clear documentation of partial lien releases ensures transparency and allows projects to continue without the threat of unexpected claims. This ultimately promotes timely project completion and minimizes potential conflicts.

This article will further explore the intricacies of these releases, including their legal implications, best practices for creation and execution, and specific examples of their use in different contexts. Understanding the nuances of these releases is essential for anyone involved in projects where liens may be filed.

Key Components of a Lien Waiver to Date

Specific elements must be present in a valid and enforceable waiver of lien to a specific date. These components ensure clarity and protect the interests of all parties involved.

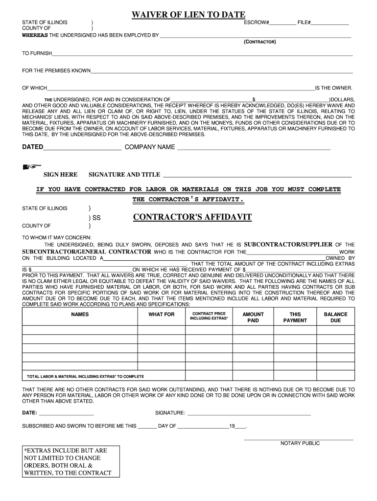
1. Identification of Parties: Clear identification of the party waiving the lien (the claimant) and the party benefiting from the waiver (the owner or general contractor) is crucial. Full legal names and addresses should be included.

2. Property Description: The property subject to the potential lien must be unambiguously described. This typically includes the full address and any other relevant identifying information.

3. Services or Materials Provided: A detailed description of the services rendered or materials supplied for which the lien is being waived is necessary. This ensures clarity regarding the specific work covered by the waiver.

4. Waiver Date: The specific date through which the lien is waived, often referred to as the “through date,” is a critical component. This clearly defines the period for which the claim is released.

5. Amount of Waiver: The specific monetary amount being waived should be clearly stated. This can be a specific dollar figure or a statement waiving all claims up to the specified date.

6. Signature and Notarization: The waiver must be signed by the claimant or an authorized representative. Notarization is often required to enhance legal validity and enforceability.

7. Specific Project Information (If Applicable): Inclusion of the project name or contract number can further clarify the scope of the waiver and prevent confusion with other projects.

Accurate and complete information in these areas ensures a legally sound document that protects all parties involved in construction or related projects. This careful documentation facilitates transparent financial practices and minimizes the potential for disputes.

How to Create a Waiver of Lien to Date

Creating a robust and legally sound waiver requires careful attention to detail and accurate information. A well-drafted document protects all parties involved and promotes smooth project completion.

1. Consult Legal Counsel: While templates can provide a starting point, seeking professional legal advice is recommended. An attorney can ensure the document complies with specific state laws and addresses the unique circumstances of the project.

2. Identify Parties Clearly: Full legal names, addresses, and roles (e.g., owner, contractor, subcontractor) of all parties involved should be clearly stated.

3. Describe the Property Accurately: Include the full legal description or address of the property subject to the potential lien.

4. Specify Services and Materials: Provide a detailed description of the work performed or materials supplied for which payment has been received and the lien is being waived.

5. State the “Through Date”: Specify the exact date through which the lien is waived. This is crucial for clarity regarding the period covered by the waiver.

6. Specify the Amount: Clearly state the dollar amount being waived. This might represent a progress payment or a final payment for services rendered through the specified date.

7. Include Signature and Notarization: The claimant or an authorized representative must sign the document. Notarization, while not always required, adds a layer of legal validity.

8. Retain Copies: All parties should retain copies of the executed waiver for their records. This documentation provides evidence of the agreement should any disputes arise in the future.

Following these steps facilitates the creation of a comprehensive and legally sound document, protecting the rights and interests of all parties involved in the construction process. This proactive approach minimizes the risk of future disputes and supports positive working relationships.

Careful consideration of a document releasing lien rights up to a specific date is vital for successful project management in construction and related industries. Accurate documentation, including clear identification of parties, property details, services rendered, and the specific timeframe covered by the waiver, safeguards the financial interests of all stakeholders. Proper execution of such documentation facilitates transparent transactions and mitigates the potential for future disputes, fostering a more secure and efficient project lifecycle.

Proactive and informed use of these waivers contributes significantly to a more stable and predictable construction environment. Understanding the legal implications and practical applications of these documents empowers businesses to manage risk effectively, maintain positive working relationships, and ensure successful project outcomes. Continued emphasis on clear communication and meticulous documentation remains essential for mitigating potential conflicts and promoting a thriving industry.

Leave a Comment